400-8750-855
合作咨询

合作咨询

400-8750-855
K3(漫生)
K3(漫生)
K3(漫生)
K3(漫生)
K3(漫生)
K3(漫生)
K3(漫生)
K3(漫生)
K3(漫生)
K3(漫生)
K3(漫生)
K3(漫生)
K3(漫生)
K3(漫生)
K3(漫生)
K3(漫生)

K3(漫生)

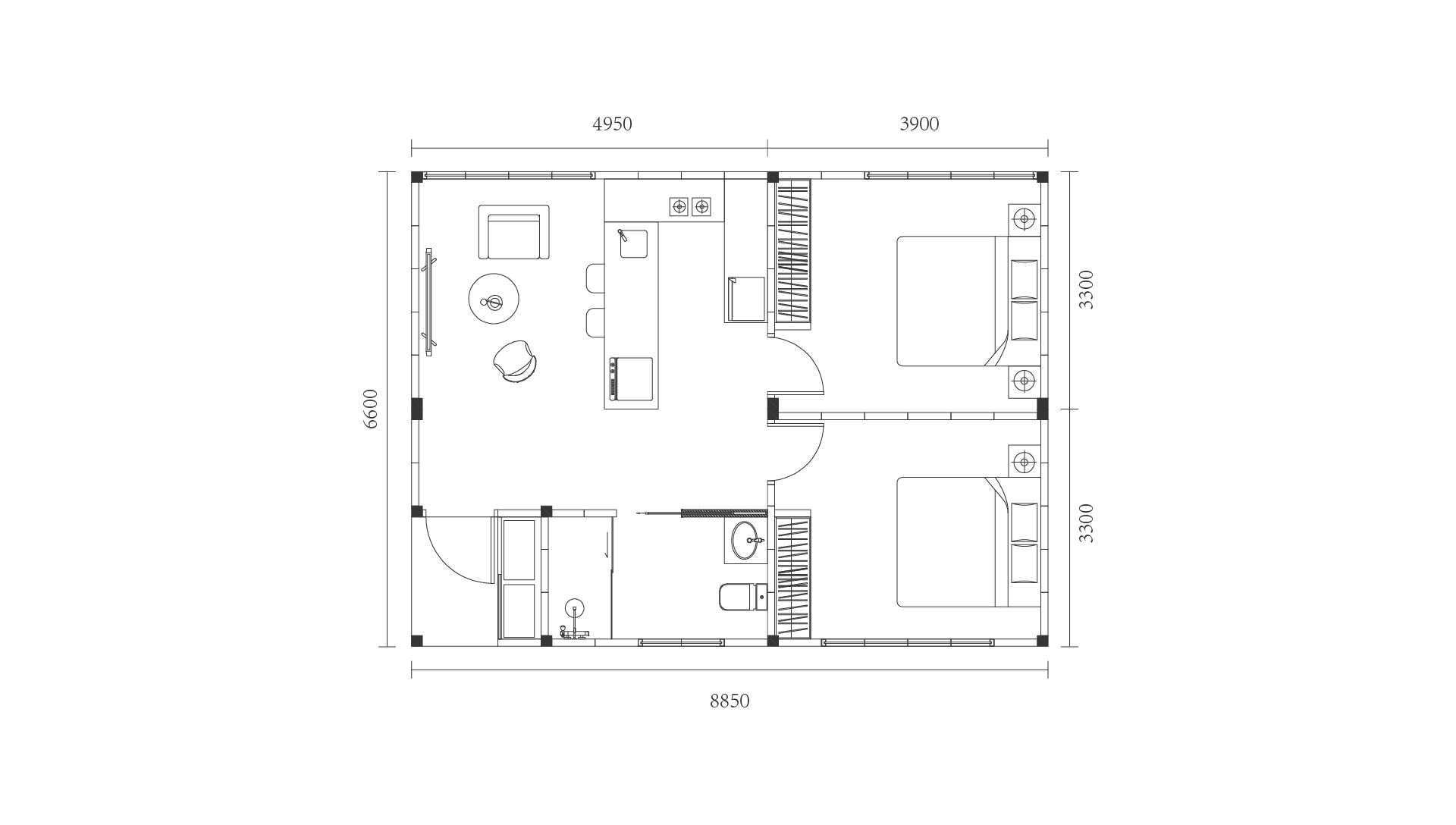
灵活拓展的家庭空间,可持续的资产解决方案
  • 建筑面积:

    58.4m²

  • 占地面积:

    58.4m²

  • 产品尺寸:

    长8.85m×宽6.6m×高3.3m

预约体验

主体构成

●   主结构/ 热镀锌钢结构

●   保温/ 玻璃棉板保温

●   基层/ 纤维水泥挂板


适用场景

可移动的零碳小屋k3(漫生)适应多种场景

●   酒店 / 办公室 / 咖啡馆

●   茶室 / 教室 / 零售 / 民宿

●   快闪店 / 休息室 / 直播室

小屋配置


主体结构

●   框架:热镀锌钢结构

              底板(选配)

●   保温:玻璃棉板保温材料

●   玻璃:Low-E 双层中空钢化玻璃

●   门窗:窗纱一体断桥铝系统窗

               钢木装甲门 +

●   墙板:纤维水泥挂板


内装系统

●   墙顶面:无机涂层 / 瓷砖

●   地面:SPC 地板 / 瓷砖

●   灯具:射灯、轨道灯

●   电源配件:开关插座面板、配电箱

●   智能系统:智能窗轨、智能灯光、语音控制


新能源系统

●   屋顶光伏:9.50kW 装机功率

●   户用储能:11.06kWh 电池容量


厨卫系统

厨房中央导台 / 橱柜 / 水槽及龙头

卫浴玻璃隔断 / 马桶 / 洗手台 / 花洒台盆 / 龙头 / 角阀及金属管 / 化妆镜


软装电器(选配)

/ 茶几 / 沙发 / 窗帘空调 / 电热水器


即刻获取
您的专属设计方案

*
*
更多咨询
咨询热线

400-8750-855

电子邮箱

hydt@cshnac.com

Copyright © 2024 华禹低碳技术(海南)有限公司   地址:海口市龙华区海秀中路50号海秀广场办公区912室    营业执照查阅    网站地图    备案号:琼ICP备2024040904号-1
技术支持:竞网智赢